SCS STANLEY
1, 2 & 3 Bedroom Floor Plans
Virtual tours show floor plans, actual finishes may vary.
Virtual tours show floor plans, actual finishes may vary.
2 Bed | 1 Bath | 923 SqFt
2 Bed | 1 Bath | 938 SqFt
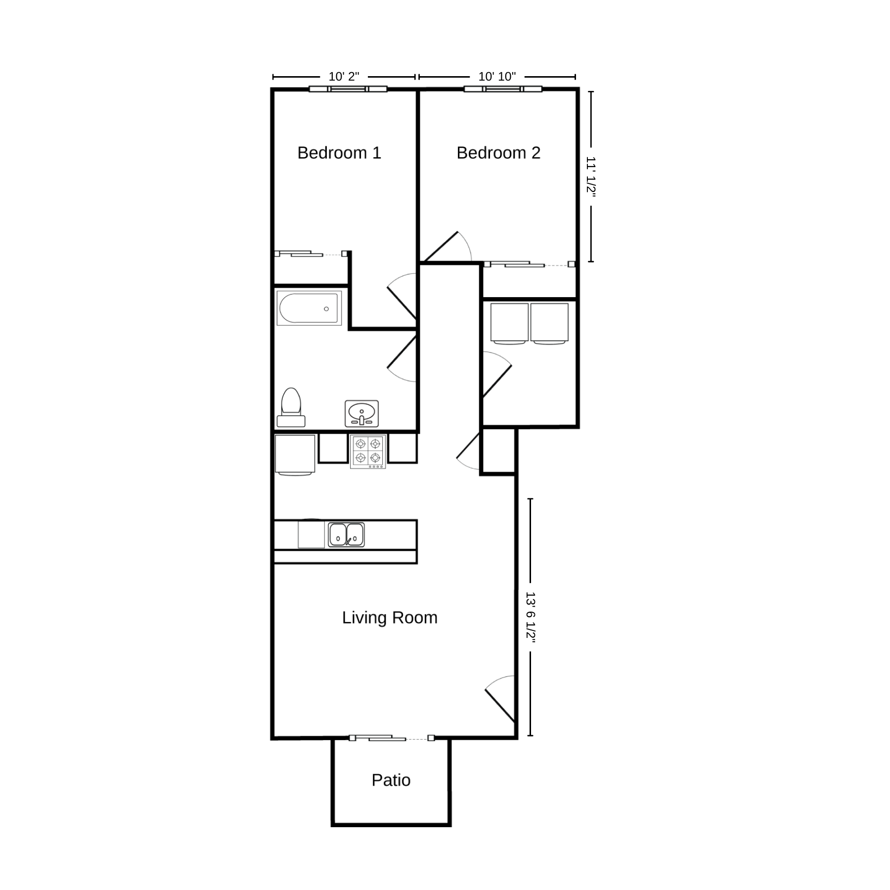
2 Bed | 1 Bath | 1,019 SqFt
2 Bed | 1 Bath | 1,032 SqFt